Tòa Park 4 Vinhomes Central Park là một trong những tòa căn hộ nổi bật thuộc phân khu The Park của đại đô thị Vinhomes Tân Cảng. Sở hữu mật độ căn hộ thấp, diện tích rộng hàng đầu dự án và tầm nhìn trực diện công viên – sông Sài Gòn, mặt bằng Park 4 được đánh giá là layout tối ưu cho gia đình đa thế hệ, khách hàng trung – thượng lưu và nhóm mua ở lâu dài.

Bài viết dưới đây tổng hợp đầy đủ thông tin về mặt bằng tổng thể, layout từng mã căn hộ (P4-01 đến P4-10), hướng view, tiêu chuẩn bàn giao và hệ tiện ích nội – ngoại khu, giúp khách hàng có cái nhìn hệ thống và chuyên sâu trước khi quyết định an cư hoặc đầu tư.
Tổng quan tòa Park 4 – The Park Vinhomes Central Park
- Tên tòa: Park 4 (P4)
- Phân khu: The Park
- Chiều cao: 43 tầng
- Số tầng hầm: 3 tầng (thông hầm toàn khu)
- Mật độ căn hộ: 10 căn/sàn
- Thang máy: 8 thang máy tốc độ cao
- Thang thoát hiểm: 2 thang bộ cửa chống cháy
Park 4 được thiết kế theo hình chữ L, tối ưu hóa ánh sáng tự nhiên và luồng gió sông. So với nhiều tòa khác trong dự án, P4 có mật độ cư dân thấp hơn, hành lang thông thoáng, đảm bảo sự riêng tư và chất lượng sống cao.

Vị trí và hướng view Park 4
Park 4 tọa lạc tại lõi sinh thái The Park của khu đô thị Vinhomes Tân Cảng – khu vực yên tĩnh, nhiều mảng xanh, tiếp giáp trực tiếp đại công viên 14ha ven sông Sài Gòn. Vị trí này mang lại lợi thế “view triệu đô” hiếm có tại khu Tân Cảng.
Hướng căn hộ và tầm nhìn:
- Tây Bắc: Nội khu, các tòa Park 5–7, hướng Bình Thạnh
- Tây Nam: Hồ bơi trung tâm, một phần Quận 1, đường Nguyễn Hữu Cảnh
- Đông Bắc: Công viên Central Park, khu biệt thự, sông Sài Gòn
- Đông Nam: View trực diện công viên 14ha và sông, hướng TP. Thủ Đức
Phần lớn căn hộ Park 4 có tầm nhìn thoáng rộng ra công viên và sông, trong đó nhiều căn sở hữu view trực diện không bị che chắn – yếu tố quyết định giá trị gia tăng dài hạn.
Cơ cấu tầng và công năng sử dụng
- Tầng trệt: Sảnh lễ tân, shophouse thương mại
- Tầng 2: Tiện ích cư dân nội khu
- Tầng 3–22 & 24–43: Tầng căn hộ điển hình
- Tầng 23: Tầng kỹ thuật
Cách bố trí này giúp tách biệt không gian kỹ thuật với khu sinh hoạt, đồng thời đảm bảo sự riêng tư cho cư dân ở các tầng trên cao.
Diện tích và layout căn hộ Park 4 (P4-01 đến P4-10)
Mặt bằng Park 4 nổi bật nhờ diện tích lớn nhất toàn khu The Park, dao động từ 79,9m² đến 151,4m² (tim tường). Thiết kế theo phong cách mở, phòng khách liền bếp, ban công rộng, cửa kính Low-E cao sát trần tối đa hóa ánh sáng tự nhiên.

Căn hộ 2 phòng ngủ (2PN – 2WC)
Phù hợp gia đình trẻ, chuyên gia, khách mua đầu tư cho thuê.
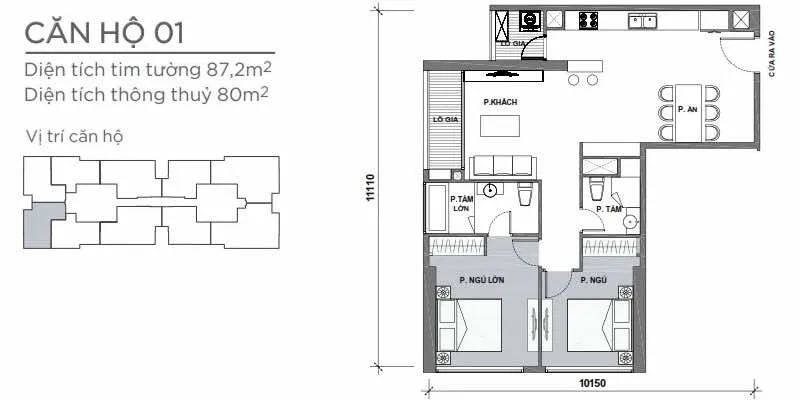
- P4-01: 87,2m² (80m² thông thủy) – cửa Đông, ban công Tây – view nội khu/sông/công viên
- P4-02: 86,9m² (79,8m²) – cửa Đông, ban công Tây
- P4-03: 82,3m² (75,1m²) – cửa Nam, ban công Bắc – view sông, công viên
- P4-05: 90m² (81,8m²) – cửa Nam, ban công Bắc
- P4-08: 90,7m² (82,7m²) – cửa Bắc, ban công Nam
- P4-10: 79,9m² (72,6m²) – cửa Bắc, ban công Nam
Nhóm 2PN tại Park 4 có diện tích lớn hơn mặt bằng chung thị trường, phù hợp ở thực lâu dài thay vì chỉ để đầu tư ngắn hạn.
Căn hộ 4 phòng ngủ (4PN)
Dành cho gia đình đa thế hệ hoặc khách hàng yêu cầu không gian rộng.
- P4-04: 117,4m² (108,8m²) – cửa Nam, ban công Bắc
- P4-06: 151,4m² (139,6m²) – cửa Nam, ban công Đông
- P4-07: 146m² (134,3m²) – cửa Bắc, ban công Đông
- P4-09: 118,2m² (109,4m²) – cửa Bắc, ban công Nam
Các căn 4PN thường nằm ở vị trí góc, sở hữu 2–3 mặt thoáng, tối ưu ánh sáng và thông gió chéo tự nhiên.
Tiêu chuẩn bàn giao căn hộ Park 4
Chủ đầu tư bàn giao hoàn thiện cơ bản cao cấp, bao gồm:
- Sàn gỗ công nghiệp hoặc gạch ceramic chống trơn
- Tường sơn nước 2 lớp
- Hệ kính Low-E chống tia UV đến 90%
- Cửa gỗ chống cháy
- Hệ thống nước nóng trung tâm
- Điều hòa Multi âm trần 2 chiều
- Intercom kết nối sảnh và tầng hầm
Thiết kế mở kết hợp kính lớn giúp căn hộ Park 4 luôn tràn ngập ánh sáng, tạo cảm giác rộng rãi và giao hòa với thiên nhiên.
Hệ tiện ích nội khu Park 4
Cư dân Park 4 được thừa hưởng toàn bộ hệ tiện ích của phân khu The Park:
- Hồ bơi tràn bờ nội khu
- Khu vui chơi trẻ em ngoài trời
- Sân thể thao đa năng
- Phòng gym miễn phí
- Shophouse F&B, spa, dịch vụ 5 sao
- Sảnh lễ tân sang trọng
Đặc biệt, chỉ mất khoảng 1 phút đi bộ từ sảnh tòa nhà ra đại công viên 14ha ven sông – không gian sinh thái hiếm có giữa trung tâm TP.HCM.
Hệ tiện ích toàn khu Vinhomes Central Park
Park 4 nằm trong quần thể đô thị tích hợp chuẩn “all-in-one” gồm:
- Đại công viên Central Park 14ha
- Vinmec Central Park
- Vinschool Central Park
- Landmark 81 – biểu tượng cao nhất Việt Nam
- Vincom Center, rạp chiếu phim IMAX, sân trượt băng, nhà hàng cao cấp
Hệ sinh thái khép kín này giúp cư dân đáp ứng đầy đủ nhu cầu sống – học tập – chăm sóc sức khỏe – giải trí ngay trong nội khu.
Lợi thế giao thông và kết nối vùng
Park 4 tọa lạc mặt tiền đường Nguyễn Hữu Cảnh, gần Điện Biên Phủ, thuận tiện di chuyển:
- Trung tâm Quận 1 chỉ vài phút
- Tuyến Metro số 1 Bến Thành – Suối Tiên
- Các tuyến xe buýt 30, 56, 104
- Bến du thuyền Marina ven sông
Vị trí “trái tim” này giúp Park 4 duy trì tính thanh khoản cao và tiềm năng tăng giá ổn định.
Đánh giá tổng thể mặt bằng Park 4
So với nhiều tòa trong phân khu The Park, Park 4 được xem là:
- Mật độ thấp (10 căn/sàn)
- Diện tích lớn nhất khu
- View công viên – sông tối ưu
- Phù hợp ở thực lâu dài
- Cộng đồng cư dân văn minh, thành đạt
Đối với khách hàng tìm kiếm căn hộ diện tích rộng, không gian yên tĩnh, tầm nhìn thoáng và giá trị bền vững theo thời gian, mặt bằng Park 4 là lựa chọn nổi bật tại Vinhomes Central Park.

Mặt bằng Park 4 Vinhomes Central Park hội tụ đầy đủ yếu tố: vị trí lõi công viên, thiết kế tối ưu, diện tích lớn, mật độ cư dân thấp và hệ tiện ích chuẩn quốc tế. Từ layout 2PN linh hoạt đến 4PN cao cấp, mỗi căn hộ đều được quy hoạch khoa học, đảm bảo công năng, ánh sáng và phong thủy.
Trong bối cảnh quỹ đất trung tâm ngày càng khan hiếm, những tòa căn hộ sở hữu view công viên – sông trực diện như Park 4 không chỉ có giá trị ở thực mà còn là tài sản tích lũy dài hạn bền vững.