Tòa tháp Park 4 Vinhomes Central Park được biết đến như một trong những tòa nhà có thiết kế đẹp và cân đối nhất tại Vinhomes Central Park. Toàn bộ tòa chỉ bao gồm căn hộ 2 phòng ngủ và 4 phòng ngủ, mang đến không gian rộng rãi, thoáng đãng và tầm nhìn mở hướng sông Sài Gòn – công viên Central Park. Đây là lý do Park 4 đặc biệt phù hợp với khách hàng tìm kiếm nơi an cư lâu dài.
Vậy mức giá hiện tại của Park 4 có thật sự tốt? Điểm mạnh nào khiến tòa căn hộ này được gia đình ưu tiên lựa chọn? Tất cả sẽ được làm rõ bên dưới.
Giới thiệu tòa Park 4 Vinhomes Central Park
Park 4 Vinhomes Central Park là tòa căn hộ sở hữu thiết kế “hiếm” trong toàn dự án Vinhomes Tân Cảng khi chỉ bố trí các căn hộ diện tích lớn, không có căn nhỏ hay studio. Cách bố trí đặc biệt này giúp Park 4 trở thành lựa chọn lý tưởng cho nhu cầu sống gia đình – vừa rộng rãi, vừa yên tĩnh.
Mỗi ngày sống tại Park 4, cư dân đều được bao quanh bởi mảng xanh – đúng tinh thần của phân khu The Park. Bên cạnh đó, dãy shophouse ở tầng trệt và xung quanh tòa nhà cũng mang đến đầy đủ tiện ích từ ăn uống, chăm sóc sức khỏe đến các dịch vụ thiết yếu.
Tòa Park 4 Vinhomes Central Park địa chỉ ở đâu?
Park 4 nằm trong phân khu The Park, khu vực được đánh giá là “mảng xanh lớn” của dự án Vinhomes Tân Cảng.
Đây là vị trí có ưu thế vượt trội khi:
- Sát công viên Central Park 14ha
- Bao quanh bởi nhiều mảng xanh nhỏ và tiểu cảnh
- Liền kề trục giao thông Tân Cảng – kết nối nhanh vào trung tâm TP.HCM
- Thuận tiện di chuyển đến quận 1, Bình Thạnh, Thủ Đức, Thảo Điền…
Nhờ tọa độ đẹp, cư dân Park 4 vừa hưởng lợi về môi trường sống, vừa tiết kiệm đáng kể thời gian đi lại.
Tiện ích cư dân Park 4 được thừa hưởng
Sống tại Park 4 là sở hữu một hệ tiện ích chất lượng vốn có của đại đô thị Vinhomes Central Park, đồng thời hưởng lợi thế mật độ dân cư thấp hơn so với nhiều tòa khác:
- Khu dân cư văn minh – an ninh tốt
- Công viên nội khu và công viên 14ha ngay cạnh tòa
- Hồ bơi rộng thuộc phân khu Park
- Khu vui chơi trẻ em và khu vận động ngoài trời
- Phòng gym miễn phí
- Dễ dàng kết nối Vincom Center – Vinschool – Vinmec
- Quản lý vận hành chuyên nghiệp
Mức độ tiện ích này khiến Park 4 Vinhomes Central Park trở thành lựa chọn ưu tiên của các gia đình cần môi trường sống chất lượng, nhiều không gian xanh và tiện nghi đầy đủ.
Giá bán căn hộ Park 4 mới nhất
Dưới đây là giá bán tham khảo của các loại căn hộ Park 4 trên thị trường:
- 2 phòng ngủ: từ 5,7 – 6,8 tỷ (sổ hồng lâu dài, view đẹp)
- 3 phòng ngủ: khoảng 9,5 – 11 tỷ
- 4 phòng ngủ: từ 14 – 15 tỷ
Mức giá trên dao động tùy thuộc vào yếu tố: tầng, hướng view, nội thất và tình trạng pháp lý. Giỏ hàng thị trường thay đổi liên tục, đặc biệt là các căn view sông hoặc view công viên thường được giao dịch nhanh.
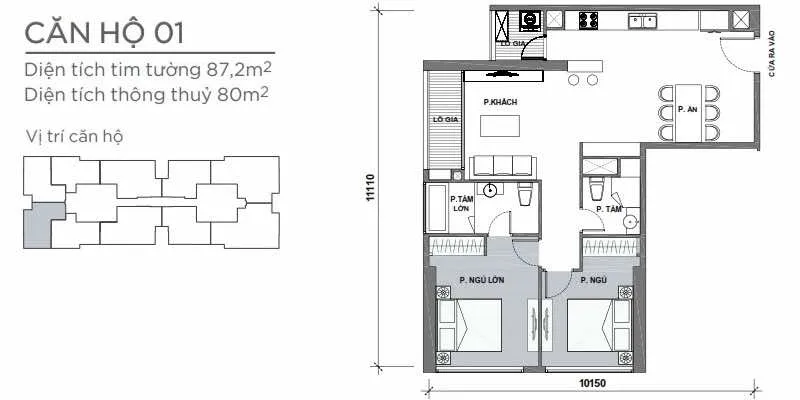
Layout P4 Vinhomes Central Park
Park 4 Vinhomes Central Park được đánh giá là một trong những tòa có mặt bằng tối ưu nhất tại Vinhomes Central Park:
- Chỉ 8 căn/tầng
- Tòa cao 39 tầng – thấp hơn nhiều so với Landmark hoặc Park 6–7
- Căn hộ vuông vức, ít góc chết
- Diện tích lớn, tối ưu công năng sử dụng

Cơ cấu căn hộ theo tầng gồm:
- 3 căn 2 phòng ngủ: 79 – 90m²
- 1 căn 3 phòng ngủ: 117m²
- 4 căn 4 phòng ngủ: 118 – 151m²
Nhờ thiết kế rộng rãi và bố cục khoa học, cảm giác sống trong Park 4 Vinhomes Central Park luôn thoải mái và riêng tư hơn so với các tòa có mật độ cao.

Tham khảo thêm:
- Park 3 Vinhomes Central Park
- Park 5 Vinhomes Central Park
- Park 6 Vinhomes Central Park
- Layout Park 2
Lý do Park 4 được nhiều khách hàng lựa chọn
Có nhiều yếu tố giúp Park 4 trở thành một trong những tòa được săn tìm nhất:
1. Mật độ dân cư thấp – riêng tư cao
Số lượng căn hộ ít giúp cư dân sử dụng thang máy nhanh, không bị quá tải vào giờ cao điểm.
2. Layout rộng – vuông – tối ưu ánh sáng
Không gian từng căn đều được thiết kế để hạn chế diện tích thừa, tăng hiệu quả sử dụng và thông thoáng.
3. Không có căn hộ dịch vụ ngắn hạn
Điều này giúp môi trường sống an toàn và yên tĩnh hơn, phù hợp mua để ở hoặc cho thuê dài hạn.
4. Tiện ích nội khu đầy đủ và chất lượng
Chỉ vài phút đi bộ là tiếp cận hồ bơi, sân chơi, công viên, Vincom, Vinschool…
5. Giá bán hợp lý so với vị trí – tiềm năng tăng giá tốt
Park 4 được đánh giá có thanh khoản cao nhờ cộng đồng cư dân ổn định và nhu cầu thuê lâu dài rất lớn.
6. Vị trí đẹp – gần công viên lớn nhất dự án
Ngay cạnh công viên 14ha, thuận tiện cho hoạt động thể thao, dạo bộ, vui chơi trẻ em và sinh hoạt cuối tuần.
Park 4 Vinhomes Central Park là lựa chọn lý tưởng cho những khách hàng muốn sở hữu căn hộ rộng, yên tĩnh, tầm nhìn đẹp và tiện ích đồng bộ. Với số lượng căn hộ giới hạn và lợi thế vị trí nổi bật, giá trị tài sản tại Park 4 luôn giữ ở mức ổn định và dễ khai thác lợi nhuận khi cho thuê.



